3D Advantage

Helping you visualize your space from start to finish

We believe in the power of 3D

Why is 3D Modeling So Important?

The single biggest concern we hear customers raise when looking through paint, tile and countertop samples is “I like these colors, but I’m just not sure how it will look in real life in my house.”

Binder continues to invest in the training and technology to provide our team and our customers with detailed 2-Dimensional drawings and true-to-life 3-Dimensional drawings to ensure everyone involved in the project has a clear understanding of exactly what the final result will look like.

3D helps our customers.
2D helps our team.

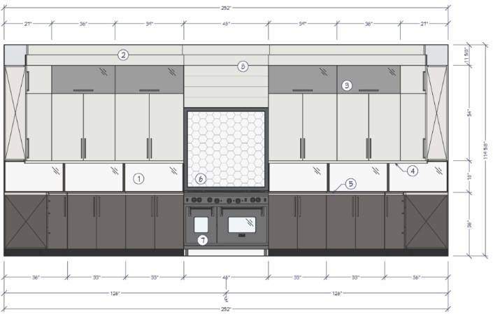
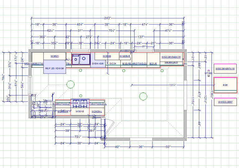
All of our team members and installers get a detailed package of 2D layout and elevation drawings of your space.  These drawings show the detailed dimensions of the size and placement of everything in the room down to 1/16″ of an inch.  Details matter, and we believe the up-front work of creating these drawings ensures an efficient and error-free construction and installation phase.

From 2D to 3D with Binder Kitchen & Bath

Is this the same as the free software I can get online?

No. Most of our suppliers have created 3D models of their products which we can load directly into our 3D modeling software. These models are incredibly detailed. For example, our cabinet supplier has provided us with models that show the dimensions to scale, wood grain patterns and paint or stain finishes of the actual cabinetry. The online software will show you a brown cabinet. Ours will show you the oak wood grain with Saddle colored stain and a Mocha glaze in the light of the 3 recessed lights you have added as part of the remodel.

The Impact of Lighting

The artificial and natural lighting that you are incorporating into your new space plays a big role in how the colors and textures you have selected look in real life. Our software is powerful enough to render the subtle light and shadows created by light fixtures, recessed lights and natural window light. We can individually turn lights on and off, adjust the bulb wattage and adjust for how the sun looks at different times of the day. Knowing how your lighting choices look will allow you to ensure you have the right number of fixtures and that they are placed at appropriate points in the space to showcase items the way you want.